Combining a raw brutalist composition with softer Indian interior touches, this fabulous home design is a dramatic blend of modern architectural principles and traditional Indian typologies. Created by talent at The Grid Architects, this unique house was designed for a small entrepreneurial family with a creative mindset.
Aside from running a thriving business, the client is also a poet, while his son is a keen wildlife photographer. Built on a plot of approximately 12,000 square feet, the large property was shaped to provide a simple, functional home. A minimalist material palette of concrete, natural stone, and teakwood provides a modest interior base for ornate Indian elements and art.

With a southwest-facing plot, the brutalist house exterior had to be shaped to protect its interior from the searing sunlight and heat. An overhanging canopy was inspired by the mysterious visual of an Indian woman shading her face from the sun under the folds of a pallu or odhani.

A bold red sculpture pulls focus near the back door of the home, contrasting brightly with the green landscape. To prevent the architectural envelope from appearing too bulky and disproportionate to the main volume of the home, the protruding case was cut and staggered.

The skewed profile of the canopy gives the structure a visually light result, whilst achieving deep shade over the windows.

The sliced frontage also creates three cantilevered levels. Various sized terraces are pocketed beneath the canopy to benefit from the blissful shade, most of which feature lush greenery and flowers. The simple entryway tucks under a concrete canopy. It features a three-metre-tall door that is drawn outward and embedded in stone. The entry door welcomes guests into an impressively long passageway with living spaces arranged along the left and a waiting vestibule on the right.

The deep overhangs protect not only the fenestration from direct sunlight, but the outer walls from heat gain.

The architectural concept was finalised after studying the sun-path.

The concrete walls of the home are textured by timber, which provides added visual interest without disrupting the honesty of the material.

The property, named Beton Brut (raw concrete in French), employs the uplifting colour and freshness of plant life both inside and out. Because of the region’s predominantly arid climate, drought-friendly plants were selected for the southwest-facing terraces. These hardy specimens encourage an influx of beautiful butterflies and hummingbirds to the outer terraces too, creating wonderful biodiversity.

As we move inside of the home, we discover a magnificent double height living room. Board formed concrete continues to share textural interest here, and provides a cool grey backdrop for the warmth of rich teakwood furniture. Living spaces are focussed towards the garden to establish a consistent link with nature.

A highly decorative Jharokha makes a stunning contradiction to the simplicity of the brutalist concrete structure. The opening overlooks the large living room below, creating a close connection between two levels of the home.

The intricacy of the Jharokha design is complemented by traditional carved artwork on the opposite side of the room. Many decorative pieces in the home are reclaimed from old Havelis, mandapas, and vessels to instil an authentic Indian essence into the home.

Interior windows create more links between levels and capitalise on natural light from every direction.

The staircase design features open wooden treads to achieve a light balance with the bold concrete surroundings.

Colourful artwork and round portholes add intriguing details to the ascent.

Up on the landing area, glass balustrades allow the unique staircase design to be taken in fully without obstruction.

A courtyard grows at the base of the stairwell. The indoor plants were selected to aid in maintaining the moisture level of the interior.

Two stairwell skylights welcome in sunlight throughout the day. One, a linear slit-like opening near the wall and the other a glare-free roof lantern. Dramatic lightplay falls over the textured concrete to create a dynamic setting.

Upstairs, wildlife photography brings colour and life to the master bedroom design. The restrained material palette of concrete, sandstone, Kota stone, and teakwood continues in the bedroom spaces to secure a calmly cohesive interior aesthetic throughout.

A teak platform bed features a floating headboard design that leaves the floor space looking clear and uncluttered. High-shine Kota stone floor tiles reflect the furniture outlines, creating a dreamy, watery effect. Pretty planting welcomes the homeowner outside onto the shaded terrace.

Striking planters, a comfortable lounge chair and a small side table fashion an inviting reading area.

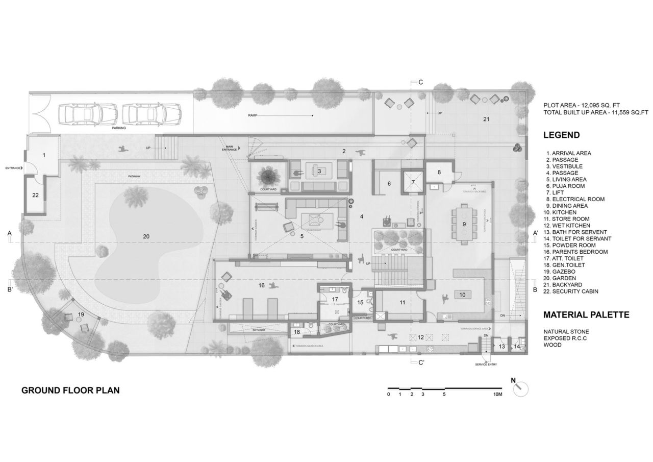
On the ground floor and site plan, we see how trees have been positioned strategically around the property so that when they flourish, they will protect the house from the southwesterly heat.

The garden is situated to the west.

Once the floor plan was finalised, it was important to ensure that sunlight coming in from the southwest was controlled to shelter the home from harsh climatic conditions.

Car parking is arranged in the cool confines of an underground garage.

The architectural form creates a duality of light and shadow, which also enhances the board formed texture of the concrete.

The home design communicates a great sense of space that brings the family together without jeopardising individuality.

Areas of congregation are interspersed with places of solitude to provide a sense of freedom and luxury.

Despite its assertive geometric forms and powerful monolithic appearance, the home contains an emotive heart.